首页 / 

又一硬核火箭基地公示,山东这一城市拟建大载重火箭总部及总装制造基地

作者: 吴晨 来源:济南日报 发表时间:2025-08-28 21:51
分享到:

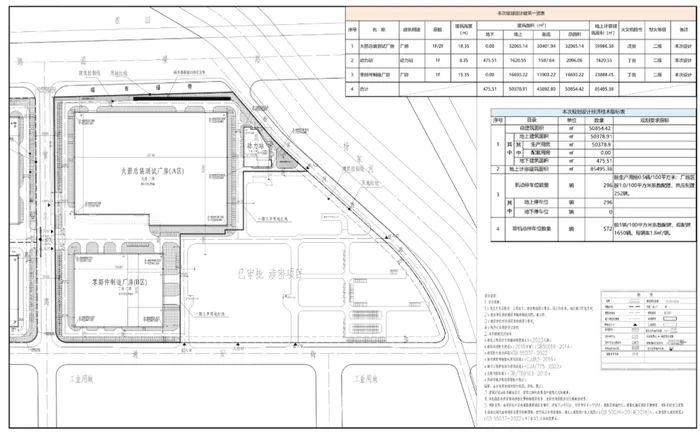
8月26日,济南市自然资源和规划局官网一项建设工程规划许可批前公示显示,济钢集团有限公司计划在济南市临港经济开发区建设"大载重火箭总部及总装制造基地项目"。项目建设将进一步提升济南市在航空航天领域的产业布局,为空天信息产业发展注入新动力。

该项目位于临港经济开发区温梁路以南、杨家河西路以西、智义路以东、通安街以北区域,由中国航空规划设计研究总院有限公司负责设计,总建筑面积50854.42平方米。根据公示信息,项目将建设三大主体建筑:火箭总装测试厂房,建筑高度18.35米,地上计容建筑面积59986.38平方米;动力站,建筑高度8.35米,地上计容建筑面积1620.55平方米;零部件制造厂房,建筑高度15.35米,地上计容建筑面积23888.45平方米。

作为济南空天信息产业链主企业,济钢集团与深蓝航天合作建设了深蓝济钢长清测试基地,专注于火箭发动机及动力系统测试。目前已建成三大测试台,即101火箭发动机测试台,测试能力20吨推力,103火箭动力系统测试台,设计推力600吨;102双工位火箭发动机测试台,测试能力130吨。

作者:吴晨

编辑:龚忻

分享到:
评论一下
评论 0人参与,0条评论
快来抢个沙发吧~
最热评论
最新评论
已有0人参与,点击查看更多精彩评论
热门文章